
Finding a solid wholesale real estate contract template free to use right now is harder than it should be.
Most templates you find online are either too vague to hold up legally, missing critical clauses like the assignability provision, or written for retail buyers rather than investors.
This page gives you 10 professionally drafted wholesale real estate contract templates — free, ready to use, and formatted for Google Docs so you can make a copy directly to your Drive.
Fill them out digitally or print and complete by hand. Each template covers a different wholesale scenario so you can always grab the right contract for the deal in front of you.
Important: These templates are strong starting points, but real estate law varies by state. Before using any template in a live transaction, have a licensed real estate attorney in your jurisdiction review it.
Table of Contents
- What Is a Wholesale Real Estate Contract?
- Free Wholesale Real Estate Contract Templates
- Classic Wholesale Assignment Contract
- Comprehensive Wholesale Purchase and Sale Agreement
- Standalone Assignment of Contract
- Double / Simultaneous Closing Agreement
- Joint Venture Co-Wholesale Agreement
- Compact One-Page Wholesale Contract
- Purchase and Sale Agreement with ARV & Equity Analysis
- Vacant Land & Lot Wholesale Contract
- Subject-To Wholesale Hybrid Contract
- Addendum & Amendment to Existing PSA
- What Every Wholesale Contract Must Include
- How to Fill Out a Wholesale Contract Step by Step
- Assignment vs. Double Close: Which Structure Should You Use?
- Common Mistakes in Free Wholesale Contract Templates
- State-by-State Considerations
- Frequently Asked Questions
What Is a Wholesale Real Estate Contract?

A wholesale real estate contract is a purchase agreement between a motivated seller and an investor (the wholesaler) that includes an assignability clause.
That clause lets the wholesaler transfer their contractual rights to an end buyer before closing, collecting a profit called an assignment fee.
The wholesaler never intends to purchase the property personally. The process works like this:
- The wholesaler finds a distressed or motivated seller willing to accept a below-market price
- They sign a purchase agreement locking in the deal
- They market the contract to their cash buyer list
- They assign the contract to an end buyer for an assignment fee (typically $3,000–$20,000+)
- The end buyer closes directly with the seller
- The wholesaler collects their fee at signing or at closing
The contract is the entire foundation of this business model. Without the right clauses — especially a clear, unconditional assignability clause — you cannot legally transfer your interest to an end buyer, and the deal falls apart.
Important: These templates are strong starting points, but real estate law varies by state. Before using any template in a live transaction, have a licensed real estate attorney in your jurisdiction review it.
Free Wholesale Real Estate Contract Templates
All 10 templates below are available as Google Docs. Click Get This Template under any template, preview it in a new tab, then click Use Template to save a copy to your Google Drive.
You can edit and fill them out directly in Google Docs, or print blank and complete by hand.
1. Classic Wholesale Assignment Contract


The classic wholesale assignment contract is the most commonly used template in wholesale real estate. It is straightforward, easy to follow, and designed to get signed quickly — even with sellers who have never dealt with an investor before.
It covers all the core deal terms: parties, property, original contract details, assignment fee, earnest money, closing, and AS-IS condition. Clean enough that a motivated seller can read through it without feeling overwhelmed.
Use this template when:
- You are doing a standard assignment deal with a cooperative motivated seller
- You want a short document that does not overwhelm a non-investor seller
- The deal is straightforward with no unusual financing or ownership complications
- You need to get a contract signed quickly during a seller visit
What it covers:
Parties identification, subject property, original purchase contract reference, assignment fee, earnest money deposit (amount, holder, and refund terms), closing date and agent, contingencies, AS-IS and authority representations, governing state, and two-column signature block for Seller and Buyer.
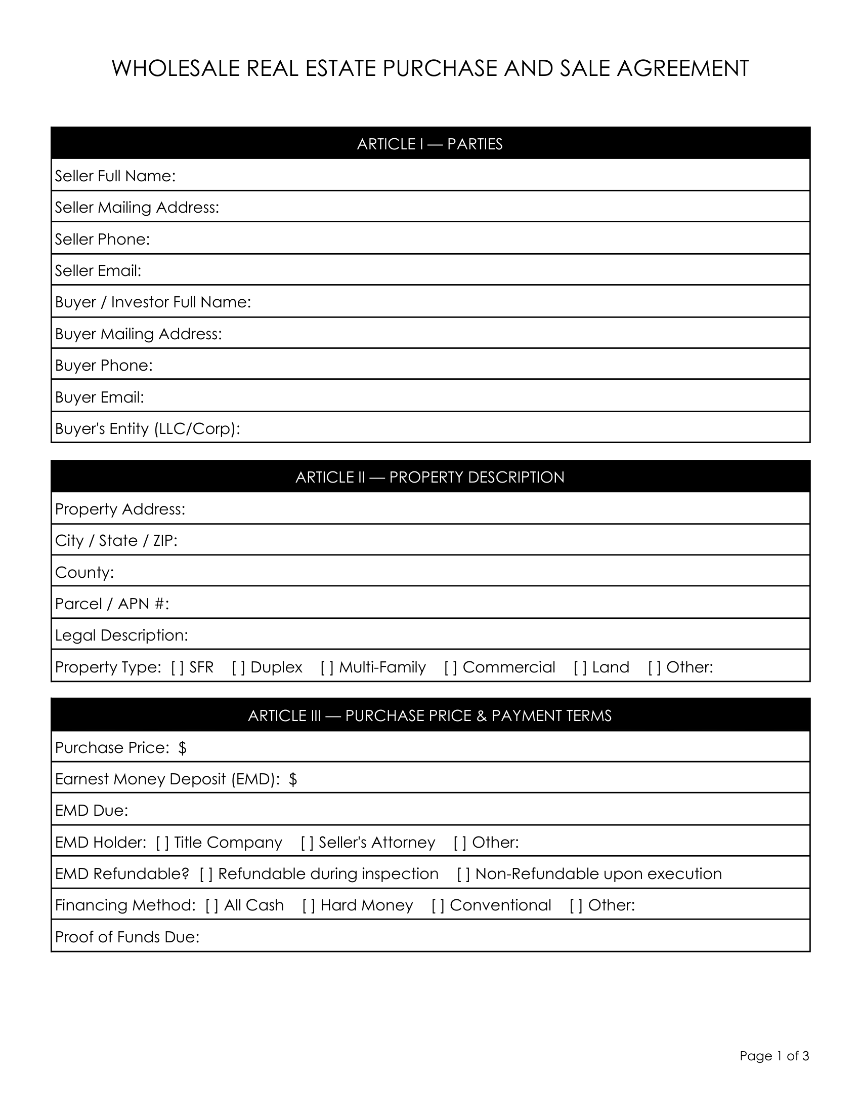
2. Comprehensive Wholesale Purchase and Sale Agreement



This is the full-length version of a wholesale purchase and sale agreement. Every term is documented, every contingency addressed, and every party’s rights and obligations clearly spelled out.
It is modeled after the type of PSA an investor would use for a higher-value deal — the kind where the details really matter and a one-pager won’t cut it.
Use this template when:
- The deal involves a higher-value property or more complex ownership structure
- You are working with sellers who have legal representation and want detailed terms
- Your end buyer or their attorney wants to see comprehensive paperwork
- You are building a professional brand and want your contracts to reflect that
What it covers:
Full party identification with contact information, detailed property description with parcel number and property type, purchase price and all payment terms including EMD holder and financing method.
Closing terms and possession details, AS-IS condition and inspection period options, title and survey choices, assignability clause, default and remedies for both parties, additional terms checklist, governing law and dispute resolution, and full signature block.
3. Standalone Assignment of Contract


The standalone assignment of contract is a separate document used alongside an existing purchase agreement. Rather than burying assignment terms inside the PSA, this template handles the transfer through its own dedicated agreement.
It is the cleaner, more professional approach — and the one most title companies prefer to see at closing.
Use this template when:
- You already have a signed purchase contract with a seller and need to transfer it to an end buyer
- Your title company or closing attorney prefers a separate assignment agreement from the PSA
- You want the assignment fee and end buyer details kept separate from the original seller contract
- You need a clean paper trail documenting the transfer of your contractual interest
What it covers:
Recitals referencing the original contract, full assignment and acceptance language, assignment fee (original price, fee amount, and total assignee price), seller notice and consent options, representations and warranties by both parties, indemnification clause, governing law, and signature block for both Assignor and Assignee.
4. Double / Simultaneous Closing Agreement



A double closing — also called a back-to-back or simultaneous closing — involves two separate transactions. You purchase from the seller (A-to-B) and immediately resell to your end buyer (B-to-C), typically on the same day.
This template documents both legs of the transaction and is designed specifically for situations where a standard assignment is not practical.
Note: A double closing requires two separate signed purchase contracts — one A-B agreement and one B-C agreement.
This template serves as a deal summary and disclosure sheet covering both transactions. Each leg must also be executed as its own standalone purchase agreement.
Use this template when:
- The profit spread is large and you want to keep your margin private from both the seller and end buyer
- The seller specifically objects to contract assignment
- The property is REO (bank-owned) or HUD-owned, which often prohibit assignment
- You are using transactional funding to fund the A-B leg
- Your end buyer’s lender requires a clean title chain without an assignment
What it covers:
Overview of the double-close structure, Transaction A details (Seller A to Wholesaler B — price, EMD, deed type), Transaction B details (Wholesaler B to End Buyer C — price, EMD, closing date options), and property description.
Funding source and closing cost allocation for both legs, conditions and contingencies checklist, profit spread disclosure, governing law, and three-party signature block for all three parties.
5. Joint Venture Co-Wholesale Agreement


Co-wholesaling happens when two investors collaborate on a deal — one who found the motivated seller and one who has the end buyer or buyer network.
This joint venture agreement defines each partner’s role, responsibilities, profit split, and the non-circumvention terms that legally protect both parties from being cut out of their share.
Use this template when:
- You found a great deal but do not have a buyer and need a partner who does
- You have buyers but a partner is bringing the deal to you
- You are co-wholesaling with another investor and both parties need legal protection
- You want documented roles so there is no dispute over who does what and who gets paid
What it covers:
Full identification of both JV partners and their entities, purpose and subject property details, clearly defined roles and responsibilities for each partner, and profit split percentage with payment timeline.
Confidentiality provisions covering seller and buyer identities, non-circumvention clause with protection period, default and failure-to-close terms, governing law, and two-partner signature block.
6. Compact One-Page Wholesale Contract


This is the most streamlined contract in the collection — a tight, all-in-one layout that fits all the core deal terms on one clean page.
Ideal for lower-priced deals, experienced sellers who have done transactions before, or any situation where you need something executed fast without sacrificing coverage.
Use this template when:
- You are dealing with a seller who is intimidated by longer documents
- The deal is smaller or more straightforward and does not require extensive terms
- You want the fastest possible path from verbal agreement to signed contract
- You are wholesaling in volume and need an efficient, repeatable one-page form
What it covers:
All parties and property details in a consolidated section, complete financial terms (price, EMD, assignment fee, assignee), closing information, and financing method.
A key terms checklist (AS-IS, free assignability, non-refundable EMD, seller clears liens, time is of the essence, tax proration), and signature block for Seller, Buyer, and Assignee.
7. Purchase and Sale Agreement with ARV & Equity Analysis


This template combines a full purchase and sale agreement with a built-in investment analysis section — showing the After Repair Value, estimated repair costs, Maximum Allowable Offer calculation, and projected profit for the end buyer.
Designed for wholesalers who want to be completely transparent about deal numbers and build credibility with experienced cash buyers.
Use this template when:
- Your end buyer is a sophisticated investor who will want to see the numbers before committing
- You want to demonstrate full transparency and professionalism on the deal
- You are presenting a deal to a buyer who needs to justify the purchase to a partner or lender
- You want to document your own deal analysis directly in the contract
What it covers:
Complete party identification, detailed property information (year built, square footage, zoning, property type), and a non-binding investment analysis section (ARV, repair costs, MAO formula, assignment fee, projected end-buyer profit).
Full purchase terms, seller disclosure of known defects, standard provisions checklist with assignability confirmation, governing law, and signature block.
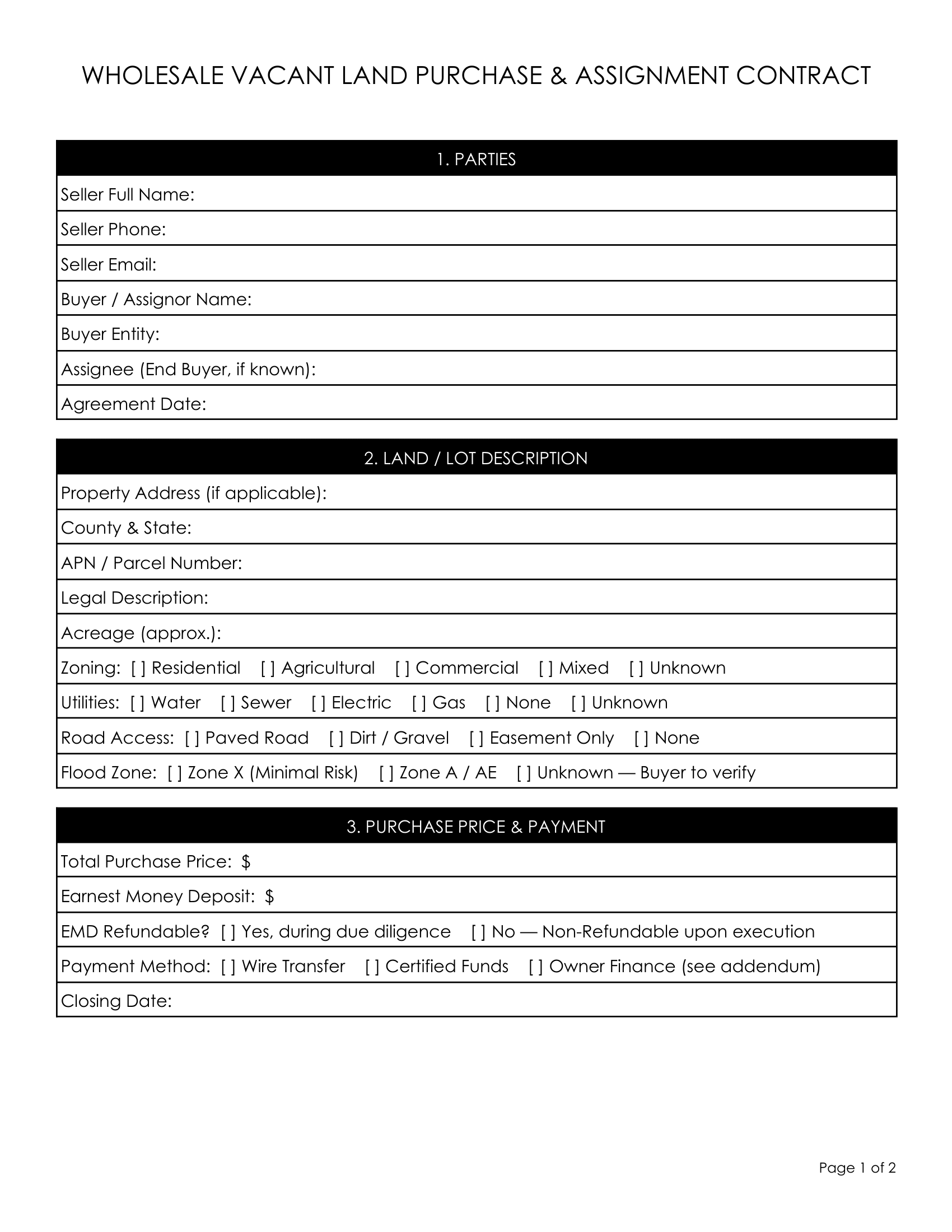
8. Vacant Land & Lot Wholesale Contract


Wholesale deals involving raw land, vacant lots, and acreage have very different due diligence requirements than residential properties.
This template is specifically drafted for land deals, with dedicated sections covering zoning, utility availability, road access, flood zone status, and all the environmental and infrastructure checks that matter when there is no building on the property.
Use this template when:
- The property is raw land, a vacant lot, agricultural land, or undeveloped acreage
- You are wholesaling a deal where the buyer’s plan is to build, farm, or subdivide
- Due diligence items like perc tests, surveys, and zoning verification are required
- A standard residential wholesale contract does not address the land-specific issues involved
What it covers:
Full parties and land description (APN, legal description, acreage), zoning classification checklist, utility availability checklist, road access type, flood zone designation, and purchase price and payment terms.
Detailed due diligence period checklist (survey, soil test, environmental assessment, zoning verification, title search, utilities, access rights), title and closing terms, AS-IS and environmental disclaimer, assignment rights, and signature block.
9. Subject-To Wholesale Hybrid Contract



A subject-to deal transfers property ownership (the deed) to the buyer while leaving the existing mortgage in the seller’s name. The buyer takes over monthly payments without formally assuming the loan with the lender.
This template combines the subject-to structure with wholesale assignability, making it usable for investors who intend to wholesale the deal or hold the property themselves.
Important: Subject-to transactions carry significant legal and financial risk for the seller. The existing mortgage’s due-on-sale clause gives the lender the right to call the entire loan balance due immediately upon any transfer of title.
Both parties should seek independent legal counsel before executing this agreement. In California, additional consumer protection laws apply to sellers in foreclosure.
Use this template when:
- The seller is behind on payments and needs relief without completing a traditional sale
- The existing mortgage has a favorable interest rate worth preserving
- You are acquiring properties creatively and may wholesale or hold them
- The seller is willing to leave the mortgage in their name in exchange for relief from their obligations
What it covers:
An important notice to the seller about mortgage risk, full party identification, property details, and complete existing financing section (lender, loan number, balance, payment, interest rate, loan type, due-on-sale clause status).
Purchase terms including equity to seller, seller acknowledgments checklist, buyer obligations, deed type checklist, insurance and tax terms, default provisions, assignability clause, governing law, and signature block.
10. Addendum & Amendment to Existing PSA


This addendum is used to modify an existing purchase and sale agreement that has already been signed.
It covers the most common mid-deal changes: adding or clarifying assignment rights, extending or waiving the inspection period, modifying earnest money, extending the closing date, renegotiating the purchase price, and adding investor disclosures.
Use this template when:
- You need to extend the closing date on a deal that is not yet ready to close
- You want to add an explicit assignability clause to an existing contract that was unclear on the point
- The purchase price needs to be renegotiated after inspection findings
- The earnest money amount or terms need to be changed by mutual agreement
- You want to formally waive the inspection contingency and lock in the deal AS-IS
What it covers:
Reference to the original agreement, Section A (assignment rights), Section B (inspection period modification or waiver), Section C (earnest money modification), and Section D (closing date extension with reason checklist).
Section E (purchase price modification with reason), Section F (AS-IS condition acknowledgment), Section G (additional modification fields), Section H (investor disclosure and confirmation that original terms remain in force), and signature block.
What Every Wholesale Contract Must Include

A free template is only useful if it has the right clauses. Here is what every wholesale contract needs, regardless of which template you use.
1. Unconditional Assignability Clause
This is non-negotiable. The clause must state that the buyer can assign the contract to any third party without the seller’s prior consent. Any version that requires seller approval defeats the entire purpose of wholesaling.
2. Full Legal Names and Entity Information
Use full legal names — not nicknames or initials. If buying in an LLC, list the LLC name and your name as its authorized representative. Title companies need this to prepare closing documents correctly.
3. Complete Property Description
Street address alone is not sufficient. Include the full legal description from county records and the Assessor’s Parcel Number (APN). Ambiguous property descriptions are one of the most common reasons deals fall apart at the title company.
4. Earnest Money Terms
Specify the exact amount, the due date, who holds it (always a neutral third party), and whether it is refundable and under what exact conditions.
5. Purchase Price — Specific and Unambiguous
State the price in numbers. No ranges, no “to be determined.” A vague price makes the contract unenforceable.
6. AS-IS Condition Clause
Removes seller warranty obligations and sets clear expectations for the wholesaler’s end buyer who will inherit the same condition.
7. Inspection Period
State the length clearly. If you are waiving inspection entirely (AS-IS with non-refundable EMD), state that explicitly rather than leaving the field blank.
8. Default and Remedies
The buyer’s default remedy should be limited to EMD forfeiture only. Seller default should entitle the buyer to their EMD back plus the right to pursue specific performance.
9. Closing Date
A specific date, not a vague timeframe. Include extension terms via addendum if needed.
10. Governing State
Specifies which state’s real estate law governs the contract.
How to Fill Out a Wholesale Contract Step by Step

Step 1 — Confirm Ownership
Before filling out any contract, pull county records to verify the seller is the legal owner. Check for liens, open mortgages, judgments, and title encumbrances that could kill the deal.
Step 2 — Run Your Numbers
Use the ARV formula: Maximum Allowable Offer = (ARV × 70%) − Repair Costs. Know your contract price and your target assignment fee before you sit down with a seller.
Step 3 — Complete Every Field
Never leave fields blank — use “N/A” if a section does not apply. Blank fields create ambiguity and can theoretically be filled in after signing.
Step 4 — Choose Your EMD Terms
Decide whether to offer a refundable EMD during inspection or a non-refundable EMD for an AS-IS deal. Non-refundable builds seller confidence. Make sure the amount, due date, and holder are crystal clear.
Step 5 — Both Parties Sign and Date Every Signature Line
Keep the original. Give the seller a signed copy immediately — this is both professional and legally required in most states.
Step 6 — Deliver Your Earnest Money on Time
Late EMD can void your contract or destroy seller trust. Wire or deliver it the same day if possible.
Step 7 — Execute Your Assignment Agreement
Once you have an end buyer, use the Standalone Assignment of Contract (Template 3) or the Addendum (Template 10) to formally transfer your rights and collect your assignment fee.
Assignment vs. Double Close: Which Structure Should You Use?

Use an assignment when the seller knows you are a wholesaler, the profit spread is modest, the property has no anti-assignment restrictions, and your end buyer is comfortable with the original contract price being visible at the title company.
Use a double close when the profit spread is large and you want to keep it private, the seller objects to assignment, or the property is REO or HUD-owned.
Also use it when your end buyer’s lender requires a clean title chain without an assignment in the chain of title.
Double closes cost more — two sets of closing costs plus transactional funding fees of approximately 1–2% of the purchase price — but they provide full privacy and work in situations where a standard assignment is simply not an option.
Common Mistakes in Free Wholesale Contract Templates

1. Assignability Clause That Requires Seller Consent
Any clause reading “with seller’s written consent” or “subject to seller approval” makes your contract functionally non-assignable. The clause must be unconditional.
2. Missing Earnest Money Holder Details
Who holds the EMD matters enormously. If it sits with a seller who then refuses to close, recovering it becomes a legal battle. Always specify a neutral third party — title company or escrow agent.
3. Vague Closing Date
“Within 30 days” is not the same as “on or before [specific date].” Without a hard date, you lose the ability to hold the seller to a timeline and create urgency.
4. No Default Clause
Without explicit default language, a seller who walks away faces no contractual consequence. You need the right to recover your EMD and pursue specific performance.
5. Missing Investor Disclosure
In many states, failing to disclose that you are an investor who intends to profit from an assignment creates fraud liability exposure. Every contract in this collection includes a disclosure provision.
6. Using Only a Street Address as the Property Description
The legal description from county records is what matters legally. The street address alone is not sufficient and can create title issues.
State-by-State Considerations

Wholesale real estate law varies significantly by state. Here are the key markets to be aware of.
Texas
The Texas Real Estate Commission (TREC) has specific disclosure requirements for wholesale contracts. Many title companies prefer TREC-promulgated forms. Wholesalers must disclose their equitable interest in any marketing materials for the property.
Illinois
State law requires specific disclosure notices on wholesale contracts and all marketing materials, notifying sellers that they may not be receiving fair market value. Verify the current statute with a local attorney before wholesaling in Illinois.
Florida
Generally wholesale-friendly with no specific anti-wholesaling statutes as of 2025, though standard disclosure and contract execution requirements still apply.
California
Strong consumer protection laws apply, particularly when dealing with distressed sellers. The AS-IS condition must be clearly documented. Subject-to transactions involving sellers in foreclosure trigger additional equity purchase protections. Consulting a California real estate attorney before wholesaling is strongly recommended.
Oklahoma and South Carolina
Have introduced or passed legislation restricting certain wholesale activities or requiring licensure in specific circumstances. Verify current state law before operating in these markets.
This information is general and does not constitute legal advice. Real estate law changes frequently. Always consult a licensed real estate attorney in your specific jurisdiction before using any contract in a live transaction.
Frequently Asked Questions

Do I need a real estate license to wholesale?
In most U.S. states, you do not need a license if you are acting as a principal — meaning you hold a contractual interest in the property and are selling that interest, not representing someone else’s property as an agent.
However, several states have tightened enforcement around wholesaling activity. Always verify current rules in your market with a local attorney.
Is a free wholesale contract template legally valid?
A free template can be legally valid if it contains all required elements and complies with your state’s specific requirements. These templates are a strong starting point, but no template replaces a review by a licensed real estate attorney who knows your jurisdiction.
What is the difference between a PSA and an assignment contract?
A Purchase and Sale Agreement (PSA) is the primary contract between you and the seller that locks up the deal.
The Assignment of Contract is the separate document you use to transfer your PSA rights to your end buyer in exchange for the assignment fee. Both are needed in a standard wholesale deal.
How much earnest money should I put down?
Typical wholesale EMD ranges from $500 to $2,500 for most residential deals, and up to $5,000 for higher-value properties. The terms matter more than the amount — a non-refundable EMD signals real commitment and builds seller confidence.
Can a seller back out after signing a wholesale contract?
Yes, but doing so after signing a valid contract constitutes breach of contract. You can pursue specific performance (a court order compelling the sale) or sue for EMD recovery and damages.
In practice, most wholesalers negotiate a resolution rather than litigate — but the signed contract gives you legal standing to enforce the deal.
How long should the inspection period be?
Most wholesalers use 5–14 days. A shorter period looks more committed. If you need more time to find a buyer, use the Addendum template (Template 10) to negotiate an extension before the period expires.
Can I wholesale any type of property?
Most residential properties can be wholesaled. Exceptions include REO and HUD properties (which often prohibit assignment in their contract terms), properties in active probate requiring court approval, and properties with unresolved title issues. Always run a preliminary title search before locking up a deal.
NOTICE: All templates and information on this page are provided for educational and informational purposes only and do not constitute legal advice. Real estate laws vary by state and change frequently. Always consult a licensed real estate attorney in your jurisdiction before executing any real estate contract.